1403 Diana St
Murfreesboro, TN 37130
Rutherford County
East Mead Addn Listed by: SimpliHOM
MLS Number 3060841
3 Bedrooms
2 Full baths
List Price: $329,900
SOLD in 26
Days
On 2/6/2026 for
$329,900
Key Features
One level brick home on almost a half acre! Sand & Finish wood floors and LVP throughout. No HOA. Thoughtful updates throughout this beautiful home but the character still remains! Fenced back yard. Carport with two storage units attached. Roof 2017, HVAC 2023, Hot water heater 2025, 2022 stackable washer/dryer remain. New blown in insulation. Close to everything including MTSU and our historic downtown Murfreesboro Square! All repairs are done. This home is ready to make your own!
Year built: 1954 - Renovated
Property Type: Site Built
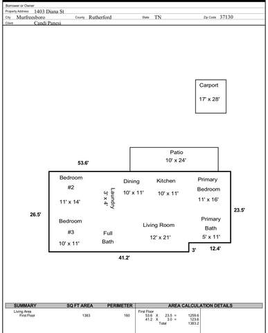
Approx. square ft.: 1,383
Lot size:
0.40 acres -
112.5 X 150
Property taxes: $1,571/yr.
Style: 1-story Ranch
Exterior: All Brick
1-Car Carport - Detached
Cooling: Electric, Central Air Cooling
Heating: Central Heat, Electric
City Water/Public Sewer
Room Sizes & Descriptions
Bedroom 1: 11x16 - Full Bath
Bedroom 2: 11x14
Bedroom 3: 10x11
Kitchen: 10x11 - Eat-In
Living Room: 12x21 - Separate
Dining Room: 10x11 - Combination
Other Room: 3x4 - Utility Room
Interior Features

Flooring: Finished Wood, Laminate

Primary Bedroom & Shower Only in Primary Bath

Ceiling Fan, Redecorated, Built-in Features
Exterior Features

Storage Building

Covered Patio, Covered Porch, Porch

No Pool
School Information
Provided Courtesy Of The RealTracs Solutions MLS Internet Data Exchange Program. Information Is Believed To Be Accurate But Not Guaranteed.
Copyright 2026 RealTracs Solutions. All Rights Reserved.