SmartSearchMusicCity.mobi
MusicCity.mobi Mobile MLS Search for Nashville TN Real Estate
Mobile Site
HotProps
FullSearchFavorites
LoginLastViewed
Thinking of Selling? CLICK HERE!
Shawn Hackett with Music City REALTORS 615.369.6633 MusicCityR.com
Call 615-369-6633 to See This Home -OR- Request A Showing Below!
No Photo

3506 Howard T Smith Drive
Murfreesboro, TN 37129

Rutherford County
Smith Farms
 
Listed by: The New Home Group, LLC
MLS Number 3006769

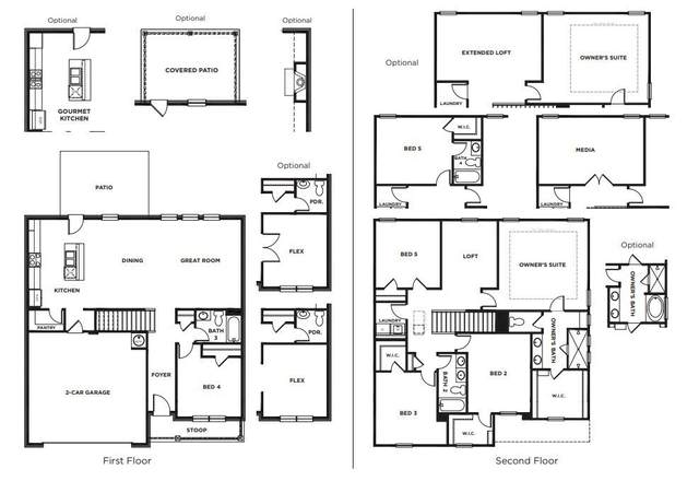
4 Bedrooms
3 Full baths
$547,530

UNDER CONTRACT

NOT SHOWING

0 Days on the Market

Additional Photos

Register to Add to Favorites

View SOLD Comps & Market Analysis


TEXT This Listing to a Friend!

Email This Listing to a Friend!

Key Features
4 BEDROOMS | 3 BATHS | BONUS ROOM | GOURMET KITCHEN | PREMIUM LAKE LOT | SMITH FARMS

Year built: 2025 - New (1/16/26)
Property Type: Site Built
Approx. square ft.: 2,584
Association Fee: $66/month
   
Style: 2-story
Exterior: Partial Brick, Vinyl Siding
2-Car Garage - Attached - FRONT
Cooling: Central Air Cooling
Heating: Heat Pump Heat
/

Room Sizes & Descriptions
Bedroom 1: 16x16 - Suite
Bedroom 2: 11x14 - Walk-in Closet
Bedroom 3: 11x12 - Walk-In Closet
Bedroom 4: 11x12
Living Room: 17x16
Dining Room: 11x16 - Combination
Rec Room: 18x12 - 2nd Floor

Interior Features
 Flooring: Carpet, Other, Tile
 Suite & Shower Only in Primary Bath
 Extra Closets, Storage, Walk-In Closets, Pantry, Entry Foyer, Open Floorplan

Exterior Features
 Garage Door Opener
 Covered Patio

Neighborhood Features
 Underground Utilities, Walking Trail, Sidewalks

School Information
Browns Chapel Elementary School
Blackman Middle School
Blackman High School

Contact Me to See This Home as YOUR Buyer's Agent!
Shawn Hackett
Music City REALTORS
Shawn@MusicCityR.com
615.369.6633 Office
615.300.3467 Mobile/Text


Click to Call Me

Add My VCard to Your Contacts


- OR -

Enter your mobile number and day & time you would like me to show you this property...


Mobile:
 at 





Provided Courtesy Of The RealTracs Solutions MLS Internet Data Exchange Program. Information Is Believed To Be Accurate But Not Guaranteed.
Copyright 2025 RealTracs Solutions. All Rights Reserved.