SmartSearchMusicCity.mobi
MusicCity.mobi Mobile MLS Search for Nashville TN Real Estate
Mobile Site
HotProps
FullSearchFavorites
LoginLastViewed
Thinking of Selling? CLICK HERE!
Shawn Hackett with Music City REALTORS 615.369.6633 MusicCityR.com
Call 615-369-6633 to See This Condo -OR- Request A Showing Below!
No Photo

516 Hinton Street
Lebanon, TN 37090

Wilson County
One Lebanon Place
 
Listed by: Lennar Sales Corp.
MLS Number 3057180

2 Bedrooms
2 Full baths
1 Half bath
$299,990

1 Day on the Market

Additional Photos

Register to Add to Favorites

View SOLD Comps & Market Analysis


TEXT This Listing to a Friend!

Email This Listing to a Friend!

Key Features
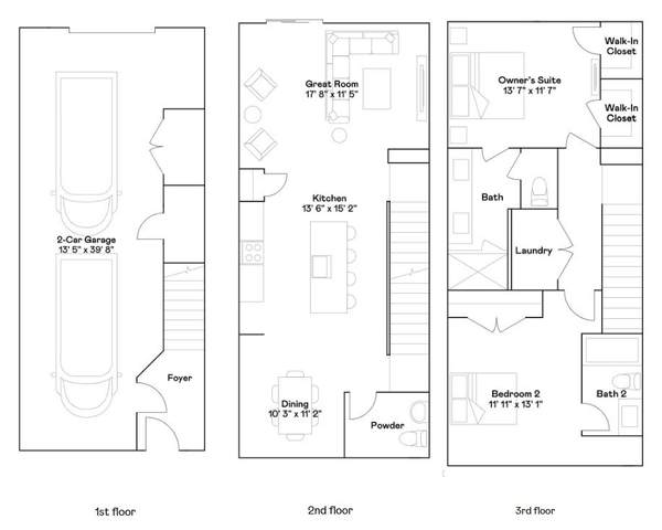
One Lebanon Place is an exciting new master-planned community redeveloped from the Lebanon Outlet Mall, with restaurant, cafe, and retail space, in addition to green space, playground, dog park, pavillion, and grills. These brand new 2-car garage townhomes offer the convenience and lifestyle youve been looking for!

Year built: 2025 - New (5/31/25)
Property Type: Townhouse
Approx. square ft.: 1,364
Association Fee: $175/month
   
Style: 3-story
Exterior: Fiber Cement, Partial Brick
2-Car Garage - Attached - REAR
Cooling: Central Air Cooling
Heating: Central Heat
/

Room Sizes & Descriptions
Bedroom 1: 14x12
Bedroom 2: 13x12
Kitchen: 15x14
Living Room: 18x11
Dining Room: 11x10

Interior Features
 Flooring: Carpet, Tile, Vinyl
 Smart Thermostat, Walk-In Closets, Pantry, Entry Foyer, Open Floorplan
 Programmable Thermostat, Insulated Glass Windows

Exterior Features
 Garage Door Opener

Neighborhood Features
 Playground, Underground Utilities, Dog Park

School Information
Byars Dowdy Elementary
Winfree Bryant Middle School
Lebanon High School

Contact Me to See This Home as YOUR Buyer's Agent!
Shawn Hackett
Music City REALTORS
Shawn@MusicCityR.com
615.369.6633 Office
615.300.3467 Mobile/Text


Click to Call Me

Add My VCard to Your Contacts


- OR -

Enter your mobile number and day & time you would like me to show you this property...


Mobile:
 at 





Provided Courtesy Of The RealTracs Solutions MLS Internet Data Exchange Program. Information Is Believed To Be Accurate But Not Guaranteed.
Copyright 2025 RealTracs Solutions. All Rights Reserved.